69124 Kirchheim, Wohnung zum Kauf
Objektdaten
-
Objekt IDFI30881
-
Objekttyp
-
Adresse69124 Kirchheim
-
Wohnfläche ca.73 m²
-
Zimmer2,0
-
Schlafzimmer1,0
-
Badezimmer1,0
-
BefeuerungGasheizung
-
Baujahr1984
-
Nebenkosten650 EUR
-
Käuferprovision3.57 % Käuferprovision (inkl. MwSt.)
-
Kaufpreis265.000 EUR
Energieverbrauchsausweis
-
Baujahr1984
-
Wesentlicher EnergieträgerGasheizung
-
Energieverbrauchskennwert104.00 kWh/(m²·a)
Ausstattung / Merkmale
- Gasheizung
- Keller
Objektbeschreibung
Beschreibung
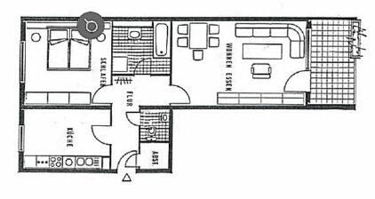
Diese sehr schöne, komplett modern sanierte, gut aufgeteilte und geräumige 2 Zimmer-Wohnung befindet sich im EG (Hochparterre) eines gepflegten SÜBA-Mehrfamilienhauses in einem attraktiven Wohngebiet auf einem Erbpachtgrundstück. Nach dem Betreten befindet man sich im Flurbereich. Von hier aus hat man zur rechten Hand eine praktische Abstelllkammer sowie das moderne WC zur Verfügung. Zur linken Hand befindet sich die geräumige Wohnküche (inkl. moderner hochwertiger Einbauküche mit Kochfeld, Backofen, Geschirrspülmaschine und Kühlschrank), welche sich auch als Essbereich nutzen lässt. Wenige Schritte weiter befindet sich geradeaus das moderne Badezimmer mit Duschkabine und Wanne sowie Waschmaschinenanschluß. Zur linken Hand erreicht man das Schlafzimmer und gegenüber geht es üdurch den Dielenbereich direkt ins lichtdurchflutete Wohnzimmer mit Loggia-Zugang und Blick ins Grüne. Abgerundet wird diese attraktive Wohnung in unmittelbarer Nähe von HD-City mit dem eigenen Kellerabteil sowie dem eigenen PKW-Stellplatz (zzgl. 15.000,- Euro)direkt im Hofbereich vor dem Haus.
Wichtige Info zu dem Hausgeld:
Die 650,- EUR / mtl. Hausgeld beinhalten bereits die Erbpachtgebühren von rund 70,- EUR / mtl. sowie die bewusst von der WEG gewählte höhere Rücklagenbildung von rund 140,- EUR / mtl.
Ihnen wird nach vollständiger schriftlichen Anfrage Ihrerseits ein aussagekräftiges Expose inkl. Besichtigungsvideo sowie aller Objektunterlagen übermittelt, so dass Sie bequem vom PC aus vorab das Objekt besichtigen und prüfen können. Selbstverständlich wird dann auch noch eine Einzel-Besichtigung vor Ort für Sie ermöglicht werden.
Ausstattung
- Komplett modern saniert und renoviert
- Vinyl-Designboden Eiche
- Hochwertige Einbauküche (inkl. Kaufpreis)
- Separates WC
- Badezimmer mit Dusche u. Wanne
- Loggia mit Blick ins Grüne
- Eigener Keller
- PKW Stellplatz (zzgl. 15.000,- Euro)
Sonstige Informationen
Bitte beachten Sie, dass nur Anfragen mit Ihren vollständigen Kontaktdaten wie
Name, Adresse und Telefonnummer beantwortet werden können.
Die genannten Objekt-Daten beruhen ausschliesslich auf Angaben des Eigentümers.
Trotz sorgfältiger Prüfung unsererseits übernehmen wir keine Haftung.
Wir verweisen diesbezüglich auf unsere Allgemeinen Geschäftsbedingungen.
Bei weiteren Fragen stehen wir Ihnen selbstverständlich jederzeit zur Verfügung.
Sehr gerne vereinbaren wir Individuelle Besichtigungstermine mit Ihnen nach Wunsch.
Besuchen Sie uns auf www.frei-immobilien.de um weitere Objekte zu finden oder kontaktieren Sie uns.
Wir freuen uns auf Sie!!!
Für unsere zahlungskräftigen Kunden sind wir ständig auf der Suche nach Miet- und Kaufobjekten.
Rufen Sie uns einfach an: 0 62 02 - 57 59 19 oder 0 17 6 - 96 51 77 05
Lage
Kirchheim ist ein Stadtteil von Heidelberg (Baden-Württemberg), der im Südwesten der Stadt liegt.
Es gibt einen alten Ortskern, in dem sich auch noch das ehemalige Rathaus aus der Zeit der Eigenständigkeit Kirchheims befindet. In Richtung Innenstadt schließt sich Kirchheim-Nord, im Westen das Hüttenbühl und Kirchheim-West an. Vor wenigen Jahren wurde Kirchheim in Richtung Sandhausen um das Neubaugebiet Dorf erweitert. Zur Zeit entsteht westlich von Kirchheim-Nord bis zum Cuzaring das Neubaugebiet Im Bieth. Zu Kirchheim gehören auch noch der Kirchheimer Weg, das Patrick-Henry-Village und die Aussiedlerhöfe Neurott, Kurpfalzhof und Kirchheimer Hof.








